
Vendita Terreno Edificabile Industriale a Forlì
Forlì
Ospedaletto – San Giorgio – Pieve Acquedotto
Vendita
€
1,600,000
Riferimento annuncio
ta4
Descrizione
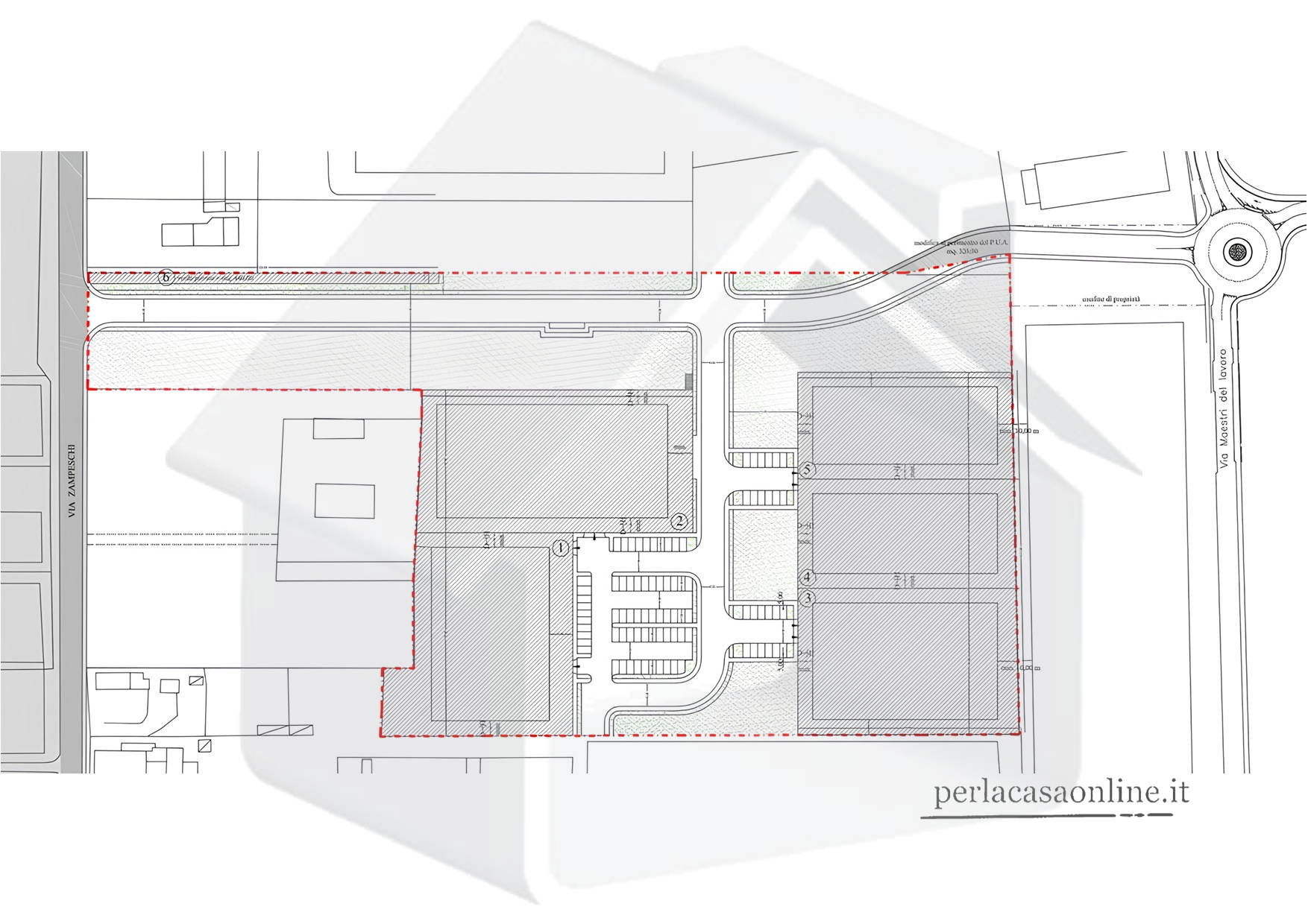
In posizione altamente strategica e con forte potenziale di sviluppo aziendale, disponiamo di Ampio lotto terreno edificabile industriale con progetto approvato – ideale per imprese produttive, logistiche e direzionali. L'area produttiva di oltre 18.000 mq situata nella nuova urbanizzazione di San Giorgio – Pieve Acquedotto, a soli 1 km dalla Tangenziale Est e dal Casello Autostradale A14 di Forlì. Questa area industriale da urbanizzare rappresenta un'opportunità rara per imprese che desiderano ampliare la propria sede, centralizzare le attività logistiche o realizzare nuovi stabilimenti produttivi. Caratteristiche principali del terreno: superficie fondiaria totale: 18.278 mq, superficie utile edificabile: 10.967 mq, altezza massima edificabile: 12 metri, progetto approvato per uno o più edifici industriali, accesso da due strade principali, una delle quali ad alto flusso veicolare, illuminazione pubblica già presente. Il terreno è perfetto per la realizzazione di: stabilimenti produttivi e manifatturieri, magazzini logistici e piattaforme di distribuzione, uffici direzionali privati e pubblici, attività artigianali, commercio al dettaglio (fino a 250 mq di superficie), pubblici esercizi e servizi per le imprese. Il lotto si colloca in una delle aree più promettenti del territorio forlivese, perfettamente collegata con le principali infrastrutture stradali e autostradali: Tangenziale Est di Forlì: 1 km, Autostrada A14 – Casello Forlì: 1 km, Aeroporto “Luigi Ridolfi” di Forlì: pochi minuti in auto, Vicinanza a zone industriali esistenti, centri logistici, interporti e porto di Ravenna. Una soluzione ideale per aziende che cercano visibilità, accessibilità e una base operativa solida in un contesto urbanistico in forte evoluzione. Perché investire in questa area: posizione logistica eccellente, perfetta per la movimentazione merci, massima flessibilità progettuale per realizzare strutture su misura, zona urbanisticamente conforme e in crescita, ottima esposizione commerciale per brand e imprese strutturate.
Caratteristiche principali
Categoria
Terreni
Tipologia
Terreni Edificabili
Tipo di Proprietà
Proprietà intera
Spese condominiali €/mese
0
Disponibilità
Libero
Affitto con riscatto
No
A reddito
No
Superficie
37500
mq
Area edificabile
11000
mq
Altezza massima edificabile
12
m
Composizione
Camere da letto
0
Altre stanze
0
Locali
0
Cucina
Assente
Bagni
0
Giardino
No
Armadi a muro
No
Balcone
No
Terrazzo
No
Cantina
No
Garage
No
Posto Auto
No
Mansarda
No
Taverna
No
Arredato
Caratteristiche Specifiche
Anno
0
Classe
Industriale
Stato
Nuovo / In costruzione
Piano
piano terra
Piani Stabile
5 piani
Accesso per disabili
Si
Lati liberi
quattro
Affaccio
Doppio
Climatizzatore
Riscaldamento
Tipo
Alimentazione
Dotazioni
Allacciammenti

Classe Energetica
Non soggetto a certificazione energetica
Indice della prestazione energetica
-
kWh/m² anno
Condividi
Proprietà sulla mappa
Video della proprietà

Comprare casa senza stress, con una guida esperta al tuo fianco










